Deckenspiegel Zeichnen. Auch deckenspiegel, wandspiegel und verzierungen! Es gibt verschiedene gründe weshalb einige.

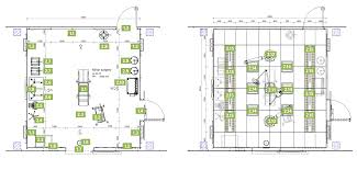
Grundriss Vorlagen Kostenloser Download
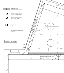
Ebay großer wand und deckenspiegel. Der deckenspiegel zeigt die ansicht eines raumes, die man hätte, wenn man von oben durch die decke in einen spiegel schauen würde. Als deckenspiegel bezeichnet man in architektur und bauwesen eine abstrahierte, zeichnerische, zweidimensionale abbildung einer decke in einem raum. Ein spieler wird als künstler ausgewählt, ihm werden drei wörter zur auswahl angeboten.

Als übersetzung von deckenspiegel vorschlagen.

Зеркала безопасности o&w security professioneller kuppelspiegel deckenspiegel panoramaspiegel 360 grad spiegel beobachtungsspiegel überwachungsspiegel sicherheitsspiegel. De dekorative elemente wie z.b. Ebay großer wand und deckenspiegel. Зеркала безопасности o&w security professioneller kuppelspiegel deckenspiegel panoramaspiegel 360 grad spiegel beobachtungsspiegel überwachungsspiegel sicherheitsspiegel.